Завантажую...

Персональний сайт рієлтора

879945d7-4545-4e19-aa85-dc3adc2c1135.jpg
  • Халатурник Діана Олександрівна

SF-3-273-681

Продам 3-кімнатну квартиру

Розташування: Київ, Оболонський район, Оболонь, Якубовського Маршала вул., 28А

Мапа
3 65/41/7 м² 2/9 95 000 $
Продам 3-кімнатну квартиру

Продається трикімнатна квартира за 5 хвилин пішки від станції метро Оболонь
Адреса вулиця Героїв полку Азов Маршала Малиновського 28А

Квартира розташована на другому поверсі будинку старого фонду
Будинок панельний з товстими стінами та високими стелями
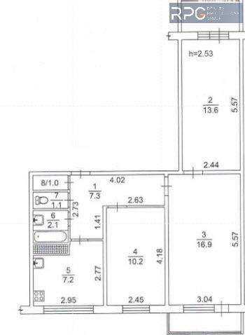
Вдале суміжно роздільне планування кімнат
У квартирі є газ газова кухонна плита
Централізоване опалення та гаряча вода
Санвузол роздільний туалет та ванна окремо
Є балкон та лоджія
Передбачена комора

Загальний стан квартири під ремонт що дає можливість реалізувати власний дизайн та планування

Поруч уся необхідна інфраструктура
Три школи з укриттям
Дитячий садок з укриттям
Супермаркети поліклініка з укриттям
Зручна транспортна розв’язка та близькість до метро

Чудовий варіант для проживання або інвестиції
Телефонуйте для детальної інформації та перегляду

Основна інформація

Ціна:  
- за об’єкт 95 000 $
- за кв. метр ≈1 473 $
Ремонт: радянський ремонт
Клас житла: економ
Кількість кімнат: 3
Площа загальна, м²: 64.50
Площа житлова, м²: 40.70
Поверх: 2
Поверхів: 9
Рік будівництва: 1971-2000

Додатково

Комунікації

Вода:
центральна;
Опалення:
центральне;

Параметри об’єкта

Матеріал стін:
панель;

Інше

Дата оновлення інформації:
23.02.2026 11:06;